お気に入りのキッチン道具をディスプレイするように。

築50年ほどのマンションの一室。空室となった部屋を、マンションオーナーであるお客様からご依頼いただき、リフォームをした事例のご紹介です。

実はこれまでにも何度かリフォームのご依頼をしてくださっているオーナーさん。

「古い建物が好きで、その味わいも楽しんでくれるような人に使ってほしい」という想いがあり、ツルツルピカピカに内装を一新するリフォームではなく、既存の経年変化や、レトロな魅力を活かしたリフォームをご希望でした。

一方で入居者さんに対しては「古さ」がネックとなってしまわないよう、水回りなどを中心に清潔感をもたせつつ、20〜30代の感度の高い層の関心を惹く内装にすることもテーマのひとつとなりました。

襖に貼られたシールに、ここで暮らした人の気配がそっと残っていました。

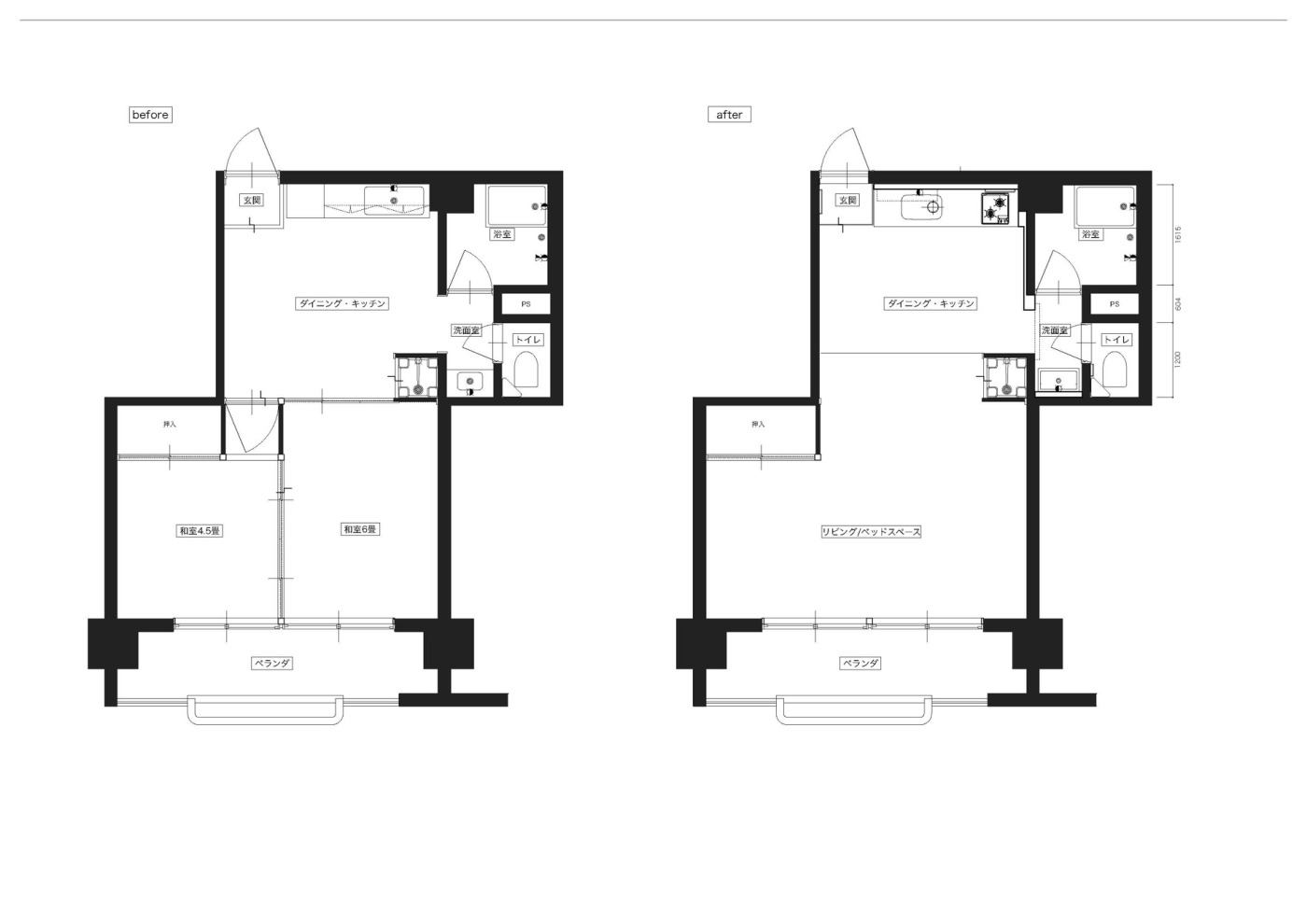
元々は、38㎡のお部屋を襖で細かく仕切った昔ながらの間取り。

南向きで明るさはあるものの、奥まったキッチン・ダイニングには光が届かず、どこか閉じた雰囲気がありました。

そこで今回は、襖や垂れ壁、さらに天井の一部も解体し、ひとつながりのワンルームに。白を基調とすることで、自然光が広がる、明るく開放感のある空間になりました。

ワンルームにすることで、レイアウトの自由度もぐっと向上します。

以前は難しかったダイニングテーブルも無理なく置けるようになり、入居者さんが暮らしに合わせて家具を選べる、ゆとりある住まいになっています。

仕切りを取り払い表層を仕上げ直すと、空間に奥行きが生まれました。

用途に合わせて床材を切り替えているのもポイントのひとつ。

リビングやベッドスペースなど、長く時間を過ごす場所には『スクールパーケット』を採用。どこか懐かしさを感じる表情が空間とよく馴染み、木ならではのあたたかさも感じられる素材です。塗装次第で色々な表情を生み出せるフローリング材ですが、今回は清潔感と空間の広がりを演出できるようクリア塗装でスッキリと仕上げました。

一方、キッチン側には水や汚れに強く、掃除がしやすい塩ビタイルを使用。床を変えることによって空間の役割を緩やかに切り替えながら、ほどよいリズムを生み出しています。

昔の学校の床を思い出します。塩ビタイルはライトグレーと明るいトーンを選ぶことで、爽やかな印象に。

襖まわりの木部は既存をそのまま残し、空間がもともと持っていた表情をいかしています。

キッチンは、空間をできるだけ広く感じられるよう、ラーチ合板で制作した収納家具に『オーダーキッチン天板』を載せた、シンプルなつくりでボリュームを抑えています。

2人暮らしでも料理を楽しめる、爽やかでスッキリとしたキッチン。鉄扉は『アイアン塗料』で印象を変えています。

こうしたオープンなキッチンの場合、下部の収納をつくり込まず、入居者さんに使い方を委ねることも多いのですが、今回こだわったのは、入居当日からキッチンとして使えるように必要最低限の収納を予め設けたこと。

左側の収納は、大きめのお鍋などのキッチン道具と、側面の玄関側は靴棚としても使えるように工夫しています。内部は水色のメラミン化粧板仕上げ。さりげないアースカラーが入ることで、置いたものが自然と映え、収納を入居者さんが楽しめるようなデザインを意識しました。

収納家具の間はゴミ箱置き場。『ホテル金物 カーテンパイプブラケット』に布をかければ目隠しもできます。

アクセントになっている飾り棚は、カラー塗装したブラケットと『フリーカット無垢材 ウォルナット』の組み合わせ。

こちらもお気に入りの小物や器をそっと並べたくなる、控えめだけれど存在感のある棚です。下段は目線の高さになるので奥行きを狭めて、キッチンに立ったときの圧迫感を軽減しています。

壁付け照明には『工業系レセップ グレー』を使っています。

背面の壁には『T番タイル ホワイト 75角』を貼っています。古さの記憶を少し残したノスタルジックな空間にとてもよく似合う、プレーンな白いタイルです。

そんなタイル壁に、飾り棚や『オーダーマルチバー』などの収納アイテムを備えておくことで、楽しく見せながら収納ができる背景づくりを意識しています。

ステンレスと木に、青を差し色にしたキッチン。

入隅と出隅には『T番タイル 細竹割』を使用しました。角が丸くおさまることで、タイル面に連続性が生まれ、角がたたないので触れたときの安心感もあります。

背面全体をふかしていますが、既存の窓開口部分はそのまま活かすことで奥行きが生まれ、こちらも飾れるスペースに。役物は端を斜め45度にカットして継ぐ「留め加工」を施しました。少し手間のかかる加工ではありますが、仕上がり面を美しく見せるための、こだわりポイントでもあります。

窓辺にはグリーンを。料理に使うハーブを育てても良さそうです。

洗面にも『T番タイル ホワイト 75角』を使い、キッチンと同じトーンでまとめています。『スクールシンク』と『ワーカーズ水栓』の組み合わせは、昔の学校を思わせる佇まい。

有効幅765mmとコンパクトな空間でしたが、シンク面も広くガシガシ使えます。

バーがついていて、ドライヤーやタオルを引っ掛けられます。

上部の開き戸の棚は既存をそのまま白塗装して印象を刷新しています。「古さを楽しんでほしい」というオーナーさんの想いを反映した洗面です。

また、限られたスペースで収納が取りづらかったため、配管のためにつくった背面のライニングを活かし、小物を置ける場所として使えるようにしています。

浴室の壁面はタイルを増し貼り、天井のバスパネルは貼り替えて、給水管を新規で配管しています。床の青いタイルは既存をそのまま活かしていて、こちらも良いアクセントになりました。

白いタイルが光を反射して、明るい浴室になりました。

改装前の浴室。

壁は『T番タイル ホワイト 100角』、照明は『ミルクガラス照明』を使用し、レトロな雰囲気を残しながらも、清潔感のある仕上がりに。

建物が持っていた古い良さをそのままに、入居者さんが手を加えていく楽しさも感じられる部屋になりました。

このお部屋でどんな暮らしが重ねられていくのか、これからが楽しみです。

現場からは以上です。

左が改装前、右が改装後の平面図。

改装前のキッチン。

改装前の洗面。

TBK
オーダーメイドリフォーム
自分好みの空間を、専属スタッフと一緒に実現するフルオーダーリフォーム
対応地域
東京23区および近郊
ツールボックス工事班|TBK

ツールボックス工事班|TBK

toolboxの設計施工チーム。住宅のリフォーム・リノベーションを専門に、オフィスや賃貸案件も手がけています。ご予算や目的に応じ、既存や素材をうまく活かしたご提案が特徴です。

オーダーメイドリフォームのご相談はこちら→TBKに相談する
リフォーム相談会定期的に開催中 詳細はこちら→コラムを読む

毎週水曜日の13時から15時まで、東京・目白ショールームに施工チームがいます。工事に関するご相談も承っておりますので、この時間もご活用ください。

紹介している商品

PS-TT009-C02-G165
¥6,880(目安)
LT-BR001-01-G141
¥2,800
LT-BR001-15-G141
¥2,800
WL-TL020-02-G141
¥7,100/㎡
WL-TL020-03P-G141
¥380/個
PT-OT001-01-G044
¥10,780

※ 写真の「ワーカーズ水栓 壁付けツインレバー混合栓 L150」は仕様変更前のもので、現在販売しているものとは仕様が異なります。

担当:白鳥 / テキスト:白鳥

関連する事例記事

古さも​新しさも、​和も​洋も、​バラバラな​素材を​丁寧に​重ねて​つくりあげる​築古戸建て​リノベーション
古さも​新しさも、​和も​洋も、​バラバラな​素材を​丁寧に​重ねて​つくりあげる​築古戸建て​リノベーション
今回ご紹介するのは、​築50年の​木造住宅を​リノベーションした​事例。​
外見はごく​一般的な​2階建ての​家に​足を​踏み入れると、​古い​ものと​新しい​もの、​合板と​無垢材、​和風と​洋風など、​色々な要素が混ざり合いながらも、違和感なく​共存する​空間が​広がっていました。 一見バラバラに見える素材たちが、どうして心地よくまとまっているのか、それを紐解いていきます。
実家を引き継ぎ、“集まるリビング”を中心に再構築した、3世代6人の住まい
実家を引き継ぎ、“集まるリビング”を中心に再構築した、3世代6人の住まい
ご実家を引き継ぎ、両親を含めた3世代6人での暮らしに合わせてリノベーション。それぞれの生活リズムを大切にしつつ、みんなが集まれる場所をきちんとつくることを大事にしました。
ラフに見えて、気が利いてる。光と風を取り込む半屋外スペースがある、“倉庫っぽい”ワンルーム賃貸
ラフに見えて、気が利いてる。光と風を取り込む半屋外スペースがある、“倉庫っぽい”ワンルーム賃貸
1フロア1戸の賃貸物件で構成された、住宅地の中に建つ小さなビル。リノベーションによって生まれたのは、鉄骨やブレースが現しになったワンルーム。倉庫のような大らかな空間には、住む人の自由な使い方を受け止める工夫と、心地よく暮らすための気遣いが詰まっていました。
間取りは変えずに“居場所”を増やす。ひとり時間もふたり時間も心地よい、夫婦ふたりの「これから」に寄り添う家
間取りは変えずに“居場所”を増やす。ひとり時間もふたり時間も心地よい、夫婦ふたりの「これから」に寄り添う家
3階建ての家での暮らしが徐々に負担になり始めたことから、東京から実家近くの京都への移住を決めたお施主さま。新たな拠点として選んだのは築33年のマンション。暮らしやすさや素材選びを軸に、”お気に入りの居場所”を散りばめた住まいには、無理なく心地よく暮らせる工夫が詰まっていました。