ASSY BIZ COMPO』は、個人向けサービスとして人気の『ASSY』から得た住まい手のニーズをもとに、賃貸・再販向けに必要な要素を絞り込んだ定額制パッケージ・リノベーション。
住み手の好みを空間に反映することで競争力を高めつつ、オーナー自身の「好き」も気軽に盛り込めるのが特徴です。

今回リノベーションしたのは、オーナーさんが所有する一室。いくつかの賃貸物件を運用してきた中で、「今度は、自分が住むとしたら?と思える物件にしたいんです」そんなご相談から、このリノベーションが始まりました。

オーナーさんは現在香港在住。定額制パッケージで仕上がりのイメージがつきやすく、自分好みのテイストにも合っていたことから『ASSY BIZ COMPO』を選んでくださいました。打ち合わせはすべてオンライン。画面越しに完成をイメージしながら、ひとつずつ進めていきました。

舞台となったのは、池尻大橋駅から歩いて10分ほどの場所に建つ、13階建てマンションの9階のお部屋です。

素材と小さな工夫で、空間の“質”を底上げする

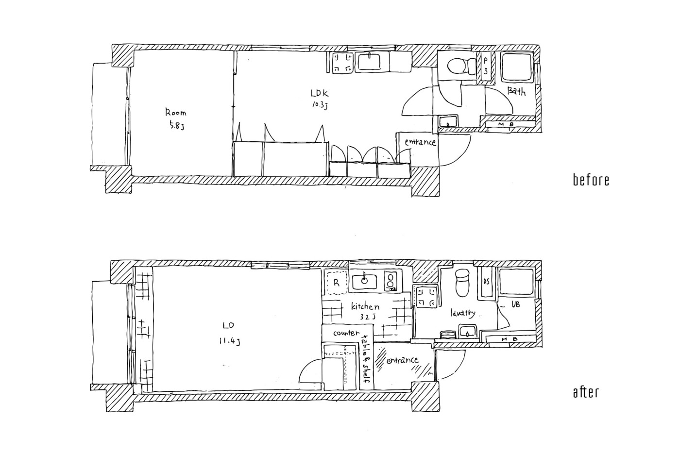
元々の間取りはベランダからお風呂まで奥に細長く伸びる縦長の2DK。部屋が細かく仕切られているため光が奥まで届きにくく、ベランダの外は高速道路。オーナーさんが特に気にされていたのは、「この間取りでどう心地よさをつくるか」でした。

そこで今回は、大きな間取り変更には限界があるからこそ、素材やパーツの選び方、光の入り方、場所ごとの滞在の心地よさを丁寧に組み立てながら、プランに落とし込んでいきました。

居住空間をできるだけ広くとり、リビングとキッチンの仕切りもなくしたことで、光が奥まで届くワンルームのような広がりをつくりました。素材の中心にラワン材を使い、どこにいても木のやわらかい表情が感じられるように。さらに、床材や仕上げを切り替えることで、キッチン・リビング・洗面など「場所ごとに違う気分が味わえる」工夫もしています。

そんな“小さな楽しさ”や“居心地の良さ”を随所にちりばめることで、空間全体の“質”を底上げしていきました。

玄関から各所を繋げる“ウォークスルーキッチン”

玄関ドアを開けると、少しゆったりとした土間スペースが出迎えます。
ちょっとした趣味の道具を置ける余白もあって、帰宅時にほっと迎え入れてくれる空気感。

正面にはラワン材の下足棚と有孔ボード。小物を飾ったり、好きなアイテムを並べたりできるワクワク感のあるつくりです。古材ミラーも設置しているので、外出前の身だしなみチェックもここで。ただ通り過ぎるだけじゃない、楽しめる玄関になりました。

下足棚のカウンターは、そのままキッチンカウンターへと連続していきます。

玄関・リビング・洗面風呂へと続く動線上にあるキッチンは、ステンレスの天板一枚でシンプルに仕上げ、存在感を出しすぎないように。インテリアの一部として、空間に馴染むように整えています。カウンターにはコンセントも備えているので、調理家電はもちろん、ちょっとした作業スペースとしても活躍できます。

コンパクトなキッチンながら、お玉掛けには調理道具を掛けられ、壁面はマグネット仕様で収納小物もペタッと固定できたり。出窓部分にはお皿や調味料を置けるので、料理好きの方でも楽しく使える空間になっています。

キッチン上には棚板を一枚だけ設けて、必要なものをさっと置けるシンプルな収納に。足元にはスツールや収納を置けるだけの余白も残し、使い方にゆるく幅を持たせました。
床はタイル仕上げに切り替えて、気分を切り替えられる小さなアクセントにしています。

外の雑多感を忘れさせてくれる、窓辺リビング

キッチンからリビング、ベランダ、その先の高速道路まで見通せる眺め。外の雑多さとは少し距離を置けるように、木製インナーサッシをつけて外音をやわらげました。木のやさしい質感が加わることで、室内は落ち着いた雰囲気に。

ラワン材のドアやオークのフローリングに、窓まわりの木製インナーサッシが合わさり、部屋全体にやさしい心地よさが広がります。

窓辺にテーブルや椅子を置くことで、日向ぼっこをしたり、作業したり、外の雑多さを忘れて心地よく過ごせる窓辺空間に仕上げました。

ベランダ側の窓辺の床にはキッチンと同じタイルを採用し、汚れを気にせずグリーンを置いて楽しめるように少しだけ仕上げを切り替えました。

リビングは、家具の配置を自由に楽しめる四角い間取り。ベッドやソファ、デスクまで自在にレイアウトでき、在宅ワークも気持ちよくこなせる、十分な広さです。

天井から降ろしたアイアンハンガーパイプも、植物を吊るしたり、服をかけたり、思い思いに窓辺を飾って。ふと窓を見たくなる、そんなゆるい心地よさのあるリビングです。

コンパクトだけれど、気持ちにゆとりをくれる水まわり

洗面・脱衣・トイレ・風呂はひとつの空間に集約しました。

洗面は、壁付けの洗面ボールを使用し、タオル掛けやホテル金物を活かした掛ける収納を中心に。ニッチを作って棚として活用するなど、限られた空間を工夫しています。

白の塗装壁ですっきりとした印象に加え、 角部屋の特権である小窓からの自然光が、空間に気持ちよさを添えています。

洗面の床には、水に強いブラウンのPタイルを使用。キッチンのイエロータイルとの切り替えが、可愛いアクセントになりました。

竣工検査でこぼれた、「ここに住みたいです」

これまでは一棟リノベでコスト重視の計画が中心だったオーナーさん。
将来自分が住む可能性も見据えて、区分マンションのフルリノベをしたのは今回が初めてでした。

完成したお部屋を前に、「もう、ここに自分が住みたいです」とひと言。

企画パッケージとはいえ、最終的にはその人の“暮らし心地”がしっかり反映されるのがASSYの良さです。床・壁・天井の仕上げや、キッチン・洗面台などの設備は標準仕様のASSY BIZ COMPOを守りつつ、気分転換になる要素や、この部屋ならではの心地よさをつくるために、素材感のあるパーツを少しずつ加えて調整していきました。自分が住む家を思い描きながら、住む人が心地よく過ごせるベースを丁寧に整えています。

住む人自身が家具や小物、日々の暮らしの色を少しずつ加えていくことで、空間はさらに個性的に、表情豊かに変化していきます。そんな変化を想像すると、これからがいっそう楽しみになります。

紹介している商品

FL-FL020-02-G173
¥6,500/㎡
PT-OT001-01-G044
¥10,780
KB-AC021-03-G141
¥8,800
KB-AC006-01-G142
¥17,200
KB-AC002-01-G141
¥3,960
PS-HD015-01-G141
¥14,200
LT-PS002-13-G141
¥15,070
PS-BK005-04-G141
¥2,600/本
テキスト:小尾